• Overview
  • Spare Parts
  • Operation
  1. Overview
  2. Spare Parts
  3. BC 3700 s/n DEQ209155 -
  4. Mechanical
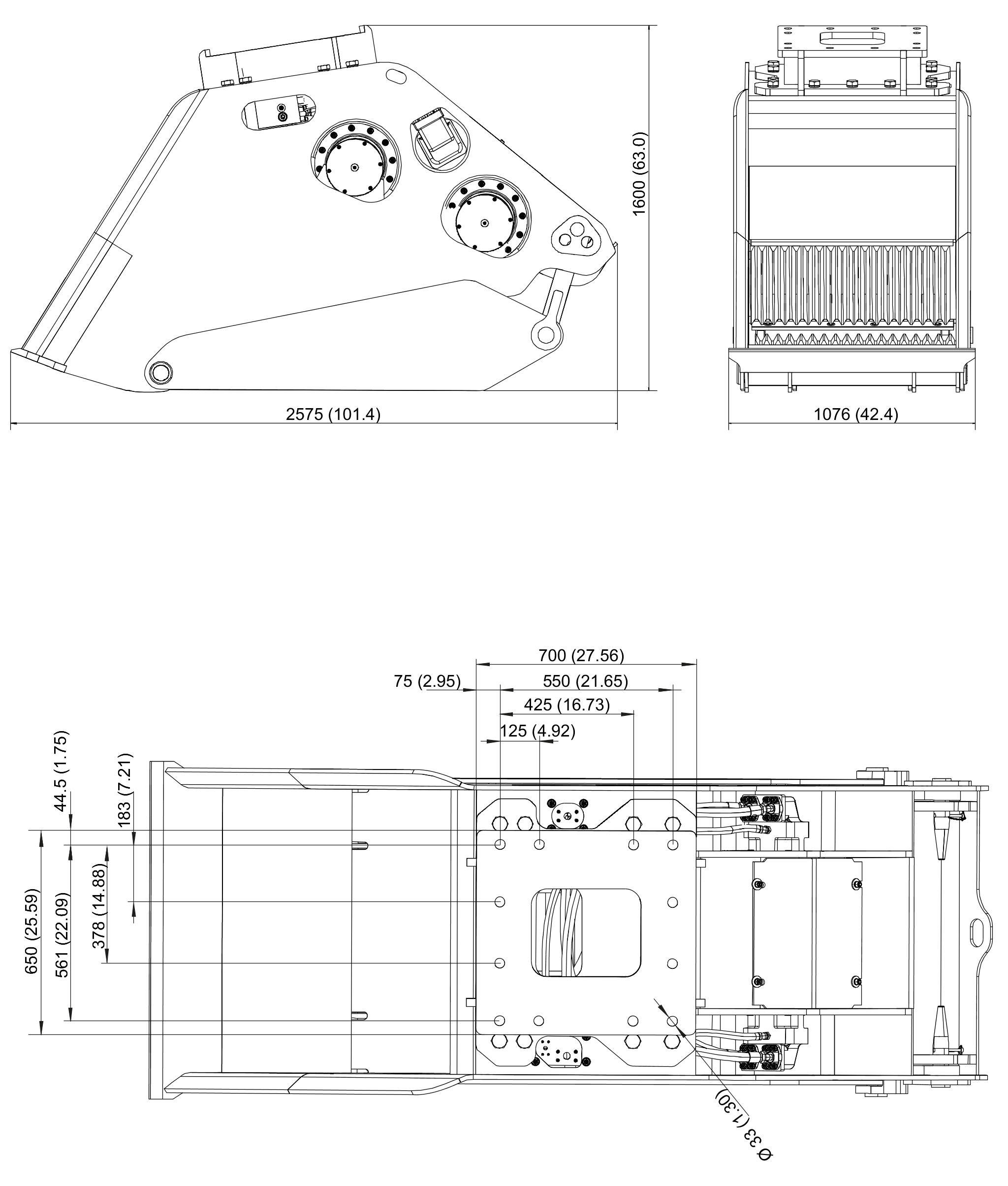
  5. Dimensions with intermediate plate
Mechanical
  • Base plate (15) CC 2500, CC 3100, DP 2800, BP 2900, BP 3050, BS 2200, MG 2100, MG 2300, MG 2700, MG 3000, BC 3700, SC 2500
  • Base plate (28) CC 2500, CC 3100, DP 2800, BP 2900, BP 3050, BS 2200, MG 2100, MG 2300, MG 2700, MG 3000, DC 2000, DC 2100, DC 2900, BC 3700, SC 2500
  • Base plate (41) BC 3700, BS 2200
  • BC 3700 s/n DEQ209155 -
  • BC 3700 DEQ159246-DEQ209154 PDF
  • BC 3700 DEQ209155- PDF
  • Service, repair and wear part kits
  • Mechanical
  • Options / accessories
  • Bucket with intermediate plate
  • Bucket without intermediate plate
  • Mobile support parallel, new version
  • Mobile support parallel, old version
  • Mobile support cross, new version
  • Mobile support cross, old version
  • Lower support
  • Inner hydraulic hoses
  • Optional parts
  • Tigthening torques
  • Dimensions with intermediate plate
  • Dimensions without intermediate plate
© 2026 EpirocLegal notice Privacy policy

Spare Parts

Dimensions with intermediate plate

Illustration for 0
#
Part number
Name
QTY
Remarks
Information
No part list found.